Under Offer Ambleside Way, Donnington Wood, Telford, TF2 Offers Over £280,000
4 Bedroom
Close to Academy School
Council Tax Band D
1,334 Sq Ft (Approx)
Driveway
Garage
Master Bedroom with En-suite
Freehold
Downstairs WC
PLOT SIZE: 3,272
EPC Rating C
Council Tax Band D, Telford & Wrekin
Freehold
Set in the heart of Donnington Wood, this exceptional four-bedroom detached residence offers stylish living, generous proportions, and a superb location close to Telford’s key amenities and commuter routes. Beautifully presented throughout, the property combines contemporary finishes with practical family living — an ideal home for those seeking space, style, and convenience.
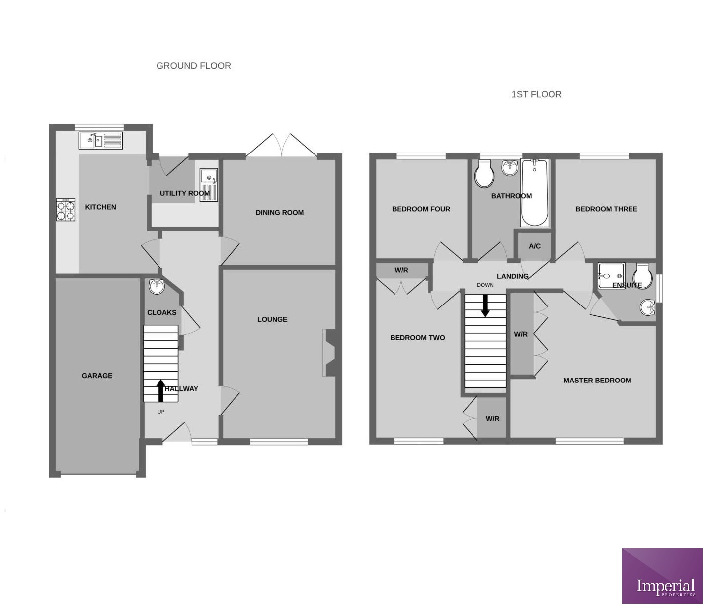
Ground Floor:
Upon entering, you are greeted by a welcoming entrance hallway finished with light, neutral décor and elegant Italian-style floor tiles, setting the tone for the quality found throughout. A guest cloakroom (6'02" x 2'11" / 1.88m x 0.89m) is conveniently positioned off the hall.
To the front of the home sits the capacious lounge (14'10" x 10'01" / 4.52m x 3.07m) — a bright and comfortable space with a focal feature fireplace, sleek laminate flooring, and neutral tones, creating a warm yet modern ambience.
The kitchen/breakfast room (12'08" x 8'02" / 3.86m x 2.49m) forms the heart of the home, fitted with stylish light-grey cabinetry, an integrated oven and gas hob, dark anthracite worktops, black hardware, and crisp white tiling with striking contrasting accents. Checkerboard-style flooring adds character to the space. From here, a utility room (6'00" x 5'06" / 1.83m x 1.68m) provides practical storage and laundry space with direct access to the rear garden.
A separate formal dining room (9'08" x 9'11" / 2.95m x 3.02m) features laminate flooring and neutral décor, with French doors opening onto the lawned rear garden, creating a seamless indoor–outdoor flow — perfect for entertaining.
First Floor:
The first-floor landing leads to four well-proportioned bedrooms:
- Bedroom One (12'11" x 10'09" / 3.94m x 3.28m) — a spacious principal suite with built-in storage and a private en-suite (5'06" x 5'06" / 1.68m x 1.68m).
- Bedroom Two (13'06" x 8'03" / 4.11m x 2.51m) — a generous double overlooking the rear.
- Bedroom Three (8'11" x 9'01" / 2.72m x 2.77m) — an excellent double bedroom or versatile guest room.
- Bedroom Four (8'11" x 8'05" / 2.72m x 2.57m) — perfect as a child’s room, nursery, or home office.
The family bathroom (6'10" x 8'00" / 2.08m x 2.44m) features a clean, modern white suite.
Outside:
To the front of the home is a substantial block-paved driveway providing parking for three or more vehicles, together with a neat lawned garden.
The property also includes a single integrated garage (standard capacity approx. 17'00" x 8'06" / 5.18m x 2.59m). Subject to the correct permissions, this space offers fantastic potential for conversion into an additional reception room, gym, studio, or home office — a valuable flexibility rarely available in modern developments.
The rear garden is mainly lawned, offering a safe, enclosed, and family-friendly outdoor space.
Location Highlights:
Ambleside Way is superbly placed for major routes in and out of North Telford, ideal for commuting to Telford, Shrewsbury, Wolverhampton, Stafford, and the wider motorway network.
Local amenities include:
- Hortonwood Business Park
- ASDA Donnington (24 hours)
- Muxton Golf Course
- Donnington Wood shops, eateries, pharmacy & medical facilities
- Excellent public transport links
Schools Within a 2-Mile Radius (with Ofsted Ratings)
- Donnington Wood Infant School & Nursery – Ofsted: Good
- Donnington Wood CofE Junior School – Ofsted: Good
- St Matthew’s RC Primary School – Ofsted: Good
- Muxton Primary School – Ofsted: Good
- Queensway Special School – Ofsted: Good
- The Telford Park School (Secondary) – Ofsted: Requires Improvement (improving)
- Redhill Primary Academy – Ofsted: Outstanding (close by)
This wealth of well-regarded schools makes the property an excellent choice for families seeking a secure long-term home.
This is a fantastic family home, for more information or to book a viewing please contact the Sales Team on the details below.
Estimated Room Dimensions:
KITCHEN 12' 08" x 8' 02" (3.86m x 2.49m)
UTILITY ROOM 6' 00" x 5' 06" (1.83m x 1.68m)
DINING ROOM 9' 8" x 9' 11" (2.95m x 3.02m)
LOUNGE 14' 10" x 10' 01" (4.52m x 3.07m)
CLOAKROOM 6' 02" x 2' 11" (1.88m x 0.89m)
FIRST FLOOR LANDING
BEDROOM ONE 12' 11" x 10' 09" (3.94m x 3.28m)
ENSUITE 5' 06" x 5' 06" (1.68m x 1.68m)
BEDROOM TWO 13' 06" x 8' 03" (4.11m x 2.51m)
BEDROOM THREE 8' 11" x 9' 01" (2.72m x 2.77m)
BEDROOM FOUR 8' 11" x 8' 5" (2.72m x 2.57m)
BATHROOM 6' 10" x 8' 00" (2.08m x 2.44m)
IMPORTANT NOTICE FROM IMPERIAL PROPERTIES
Descriptions of the property are subjective and are used in good faith as an opinion and NOT as a statement of fact. Please make further specific enquires to ensure that our descriptions are likely to match any expectations you may have of the property. We have not tested any services, systems or appliances at this property. We strongly recommend that all the information we provide be verified by you on inspection, and by your Surveyor and Conveyancer.























































