3 Bedrooms
Council Tax Band A
Close to Railway Station
Approx 800 Sq ft
FREEHOLD
NO Upward Chain
Council Tax Band A, Telford & Wrekin
Freehold
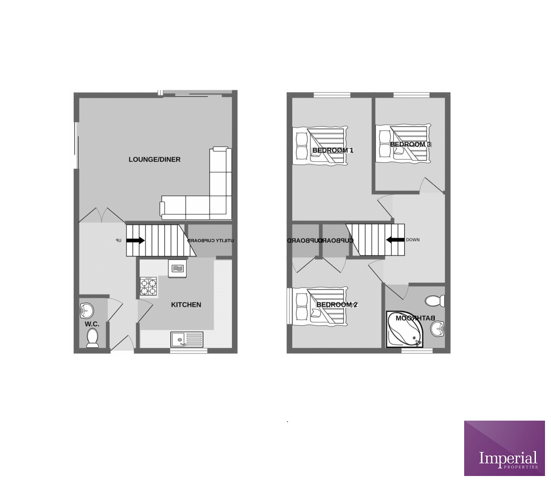
Welcoming you into this beautifully presented three-bedroom home in Duffryn, Hollinswood, is an inviting entrance hallway that leads to a convenient downstairs shower room and WC. The property has recently undergone a light renovation, boasting a brand new kitchen, updated bathrooms, and fresh decoration throughout, making it move-in ready.
The heart of the home is the sleek, modern grey kitchen/diner, measuring 13'3" x 10'4" (4.05m x 3.16m), featuring an integrated electric oven and hob that combine functionality with contemporary style. The spacious lounge at the rear, 13'9" x 16'9" (4.18m x 5.10m), provides an ideal space for relaxation and entertaining, with French doors that open directly onto a patio and a lawned garden, creating a seamless indoor-outdoor flow.
Upstairs, the property offers three well-proportioned bedrooms. The primary bedroom, measuring 11'4" x 7'9" (3.45m x 2.36m), is a cozy retreat, while the second bedroom, at 14' x 8'9" (4.27m x 2.67m), is equally spacious and versatile. The third bedroom, 13'3" x 10'2" max (4.05m x 3.09m max), provides ample space for a study or guest room. A sleek and updated family bathroom completes the upper floor (dimensions not provided on the original plan).
Externally, this property benefits from a wrap-around garden, laid to lawn, complete with a garden shed and side access, perfect for outdoor activities and additional storage.
Located in Duffryn, the home is just a short walk from the Southwater development, Telford Town Centre, and a variety of bars and restaurants. Telford Central railway station is also within easy reach, ideal for commuters. Additionally, the upcoming Station Quarter development, expected to complete in 2026, will introduce even more dining and leisure options, enhancing the vibrant local area.
With spacious rooms, modern features, and a prime location, this property offers the perfect blend of style and convenience for contemporary living in Telford. For more information or to book a viewing please contact the Sales Team on the details below.
Estimated Room dimensions:
- Lounge: 13'9" x 16'9" - (4.18m x 5.10m)
- Kitchen/Diner: 13'3" x 10'4" - (4.05m x 3.16m)
- Bedroom 1: 11'4" x 7'9" - (3.45m x 2.36m)
- Bedroom 2: 14' x 8'9" - (4.27m x 2.67m)
- Bedroom 3: 13'3" x 10'2" max - (4.05m x 3.09m max)
- Bathroom: (Dimensions not provided on the original plan)
IMPORTANT NOTICE FROM IMPERIAL PROPERTIES
Descriptions of the property are subjective and are used in good faith as an opinion and NOT as a statement of fact. Please make further specific enquires to ensure that our descriptions are likely to match any expectations you may have of the property. We have not tested any services, systems or appliances at this property. We strongly recommend that all the information we provide be verified by you on inspection, and by your Surveyor and Conveyancer.





































































