For Sale Haygate Road, Wellington, Telford, TF1 Offers Over £185,000
3 Bedrooms
Council Tax Band B
Victorian Property
Excellent Location
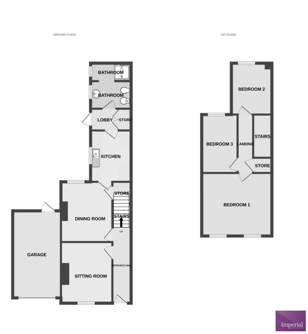
PLOT SIZE; 2,335 Sq ft
Internal Approx 947 Sq ft
Garage
FREEHOLD
Council Tax Band B, Telford & Wrekin
Freehold
Set on the ever-popular Haygate Road, this charming end-of-terrace period property offers an abundance of character, space, and practicality – the perfect blend for homeowners seeking timeless elegance with everyday comfort.
As you step through the traditional front door, you’re welcomed into a bright entrance hallway, setting the tone with high ceilings and neutral tones. To the front, the main lounge is a cosy yet refined space, featuring a focal fireplace, ornate cornice mouldings, and a warm rustic brown carpet that complements the home’s classic aesthetic.
Leading through the hallway is the formal dining room, ideal for entertaining, with its distinctive mauve décor, period features, and sash-style window that adds to the timeless feel of the home.
To the rear, the galley kitchen is fitted with light-coloured cabinetry, classic splashback tiling, and boasts a stunning 'AGA' cooker – a delightful centrepiece for any home cook. Just off the kitchen is the family bathroom, complete with WC, bidet, and a walk-in electric shower, all designed for functionality without compromising style.
Upstairs, you’ll find three well-proportioned bedrooms. The master bedroom is a spacious retreat, while the second double bedroom offers flexible use for guests or workspace. A third, smaller bedroom provides a perfect nursery, dressing room, or home office.
Externally, this home shines with a generous rear garden, predominantly laid to lawn – perfect for children, pets, or summer gatherings. To the rear boundary, a separate single garage (standard size approx. 16’4” x 8’2” / 5m x 2.5m) provides practical storage or off-street parking.
A Rare Find – With period charm, versatile living spaces, and a great location close to Wellington Town Centre, schools, and transport links, this home is one not to be missed.?? Viewing is highly recommended – contact us today to arrange your private tour.
Estimated Room Dimensions:
Kitchen: 2.90m x 2.20m (9'6" x 7'3")
Lounge: 3.60m x 2.80m (11'10" x 9'2")
Dining Room: 3.50m x 2.80m (11'6" x 9'2")
Bathroom: 2.20m x 1.70m (7'3" x 5'7")
Bedroom 1: 3.90m x 3.50m (12'10" x 11'6")
Bedroom 2: 3.40m x 2.00m (11'2" x 6'7")
Bedroom 3: 2.80m x 2.10m (9'2" x 6'11")
IMPORTANT NOTICE FROM IMPERIAL PROPERTIES
Descriptions of the property are subjective and are used in good faith as an opinion and NOT as a statement of fact. Please make further specific enquires to ensure that our descriptions are likely to match any expectations you may have of the property. We have not tested any services, systems or appliances at this property. We strongly recommend that all the information we provide be verified by you on inspection, and by your Surveyor and Conveyancer.



















































































