FULL PLANNING 9 Apt 1 x beds
FREEHOLD
Approx 4 Sq ft
Site Size: 0.25 Acres
Ideal Development
Open to offers
1 x Current 2 Bed Accomodation
Council Tax , Telford & Wrekin
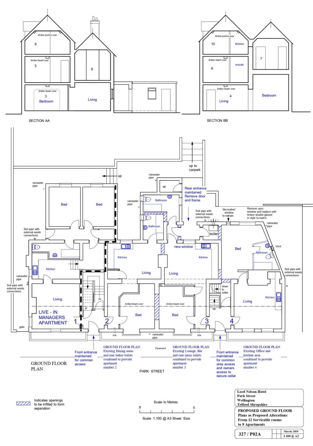
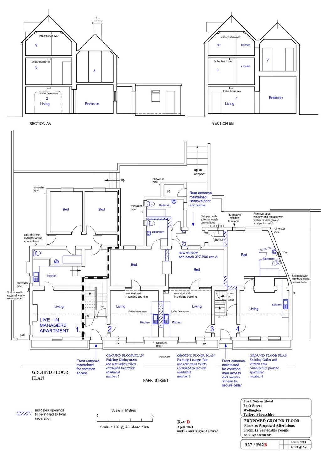
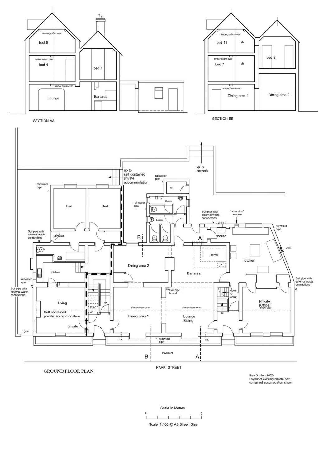
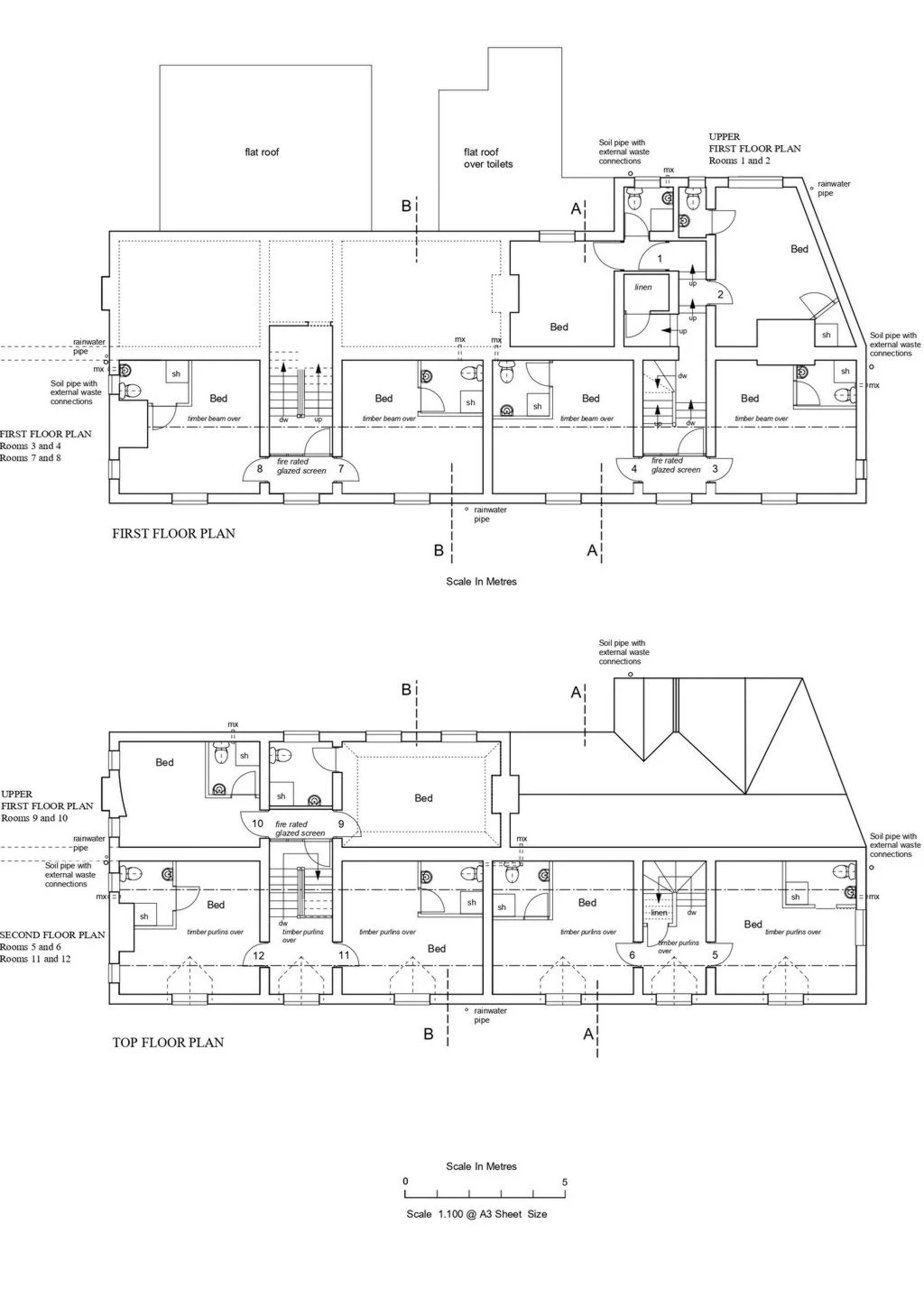
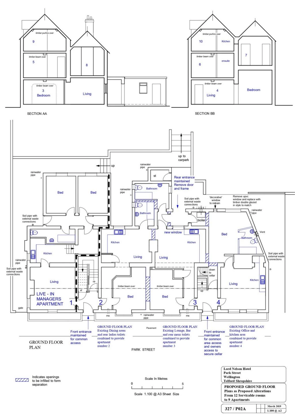
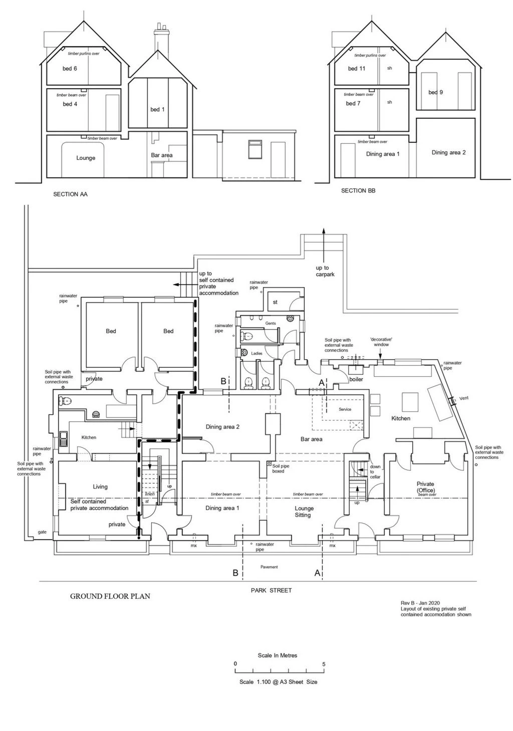
Fantastic opportunity to procure this beautiful Victorian property current Bed & Breakfast with 12 en-suite rooms with 2 Bedroom apartment which is used as living quarters.
The development sits on a 0.25 Acres site and currently has FULL PLANNING for 9 further apartments 9 x 1 BED apartments with parking to the rear. The Lord Nelson sits on Park Street a stones throw from the centre of Wellington and the Prince Royal Hospital in the opposite direction.
One Beds in this area would sell for £90,000 and Two Bed apartment would be approximately £110,000 which would be approximately £920,000 GDV.
Potential to build at the rear with less parking allocation as being centrally located.
For more information or to book a viewing please contact the Sales Team on the details below.
IMPORTANT NOTICE FROM IMPERIAL PROPERTIES
Descriptions of the property are subjective and are used in good faith as an opinion and NOT as a statement of fact. Please make further specific enquires to ensure that our descriptions are likely to match any expectations you may have of the property. We have not tested any services, systems or appliances at this property. We strongly recommend that all the information we provide be verified by you on inspection, and by your Surveyor and Conveyancer.







































































